
博罗有线数字电视前端机房
发布时间:2012-06-25 17:46:00
发布时间:2012-06-25 17:46:00
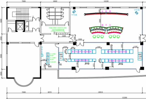
博罗县广播电视台数字电视前端机房根据使用功能将机房划分为机房设备区、监控操作室、电源控制室、呼叫中心及UPS电源室等几个机房区域。具体格局和划分面积详见下表:
|
机房名称 |
机房区域 |
机房用途 |
规划面积 |
|
数字电视前端机房 |
机房设备区 |
平台核心设备区 |
107.51平方米 |
|
监控操作室 |
数字电视平台播出监控 |
123.87平方米 |
|
|
电源控制室 |
十一楼主机房区电气配电 |
21.62平方米 |
|
|
呼叫中心 |
数字电视服务平台呼叫中心 |
62.68平方米 |
|
|
UPS电源室 |
UPS主机、电池柜及动力配电柜 |
52.43平方米 |
|
|
过道、走廊 |
机房主入口过道、机房设备区外侧走廊 |
43.88平方米 |
|
|
机房总面积: |
411.99平方米 |
||
机房建设的主要内容包括:
1. 机房装饰装修工程
| (1) 原机房设施拆除及清运、老机房改造工程 | (5) 机房玻璃隔断墙工程 |
| (2) 机房天棚工程 | (6) 机房门窗工程 |
| (3) 机房地面工程 | (7) UPS电源室装修工程 |
| (4) 机房墙、柱面工程 |
2. 电气系统安装工程
| (1) UPS供电系统 | (3) 机房照明系统 |
| (2) 机房配电系统 | (4) 机房防雷接地系统 |
3. 空气调节系统
| (1) 主机房精密空调系统 | (3) UPS电源室机房空调系统 |
| (2) 监控机房空调系统 | (4) 呼叫中心空调系统 |
4. 机房综合布线系统工程
| (1) 设备机柜安装 | (4) 弧形组合式控制台安装 |
| (2) 设备机柜承重加固 | (5) 槽式桥架及上走线架安装 |
| (3) 弧形电视墙安装 |
5. 机房环境集中监控系统工程
| (1) 监控系统平台 | (6) 视频监控系统 |
| (2) 温湿度监测系统 | (7) 电力参数监测系统 |
| (3) 消防报警系统 | (8) 空调监控系统 |
| (4) 漏水检测系统 | (9) UPS监控系统 |
| (5) 门禁监测系统 | (10) 系统综合布线施工 |
6. 呼叫中心场地装修工程
| (1) 装饰装修工程 | (3) 话务员座席位及安装 |
| (2) 电气系统安装工程 |
机房平面规划图:

机房鸟瞰图:

工程实景图:
![]() |
![]() |
|
| 主机房实景图 |
|
电源控制室实景图 |
![]() |
![]() |
|
| 配电柜-电缆布线效果实景图 |
|
负一楼UPS电源室-输入配电柜、UPS主机及电池柜 |
![]() |
![]() |
|
| 呼叫中心实景图 |
|
监控机房-电视墙及操作台 |
![]() |
![]() |
|
| 数字电视平台设备安装实景图 |
|
数字电视平台设备安装实景图 |
注册地址:广州市越秀区广州大道中307号C栋3901房 通讯\办公地址:广州市越秀区广州大道中307号富力新天地中心C栋3901房
电话:020-38023820 38023821 38023822 传真:020-38023819
广州卫讯科技有限公司 版权所有 备案号:粤ICP备17090090号-1























