
英德有线数字电视前端机房
发布时间:2012-06-25 14:59:41
发布时间:2012-06-25 14:59:41
英德市广播电视台数字电视前端机房根据使用功能将机房划分为机房设备区、监控操作室、电源控制室、空气调节机房、呼叫中心、播控部办公室、值班人员休息室及储藏室等多个区域。具体格局和划分面积详见下表:
|
机房名称 |
机房区域 |
机房用途 |
规划面积 |
|
数字电视 前端机房 |
设备机房 |
数字电视平台、增值业务系统、光纤网络传输系统 |
114.55平方米 |
|
监控机房 |
数字电视前端播出监控 |
104.60平方米 |
|
|
电源控制机房 |
机房电气系统管理 |
29.58平方米 |
|
|
空气调节机房 |
空气调节系统 |
38.64平方米 |
|
|
呼叫中心 |
客户服务人员座席 |
29.10平方米 |
|
|
播控部办公室 |
|
42.83平方米 |
|
|
值班人员休息室 |
|
20.87平方米 |
|
|
储藏室 |
|
16.69平方米 |
|
|
机房总面积: |
396.86平方米 |
||
机房建设的主要内容包括:
1. 机房装饰装修工程
| (1) 原机房设施拆除及清运 | (5) 机房玻璃隔断墙工程 |
| (2) 机房天棚工程 | (6) 机房门窗工程 |
| (3) 机房地面工程 | (7) 电源控制机房装修工程 |
| (4) 机房墙、柱面工程 |
2. 电气系统安装工程
|
(1) UPS供电系统 |
(3) 机房照明系统 |
|
(2) 机房配电系统 |
(4) 机房防雷接地系统 |
3. 空气调节系统
| (1) 精密空调系统 | (2) 新风系统 |
4. 机房综合布线系统工程
| (1) 设备机柜安装 | (4) 弧形组合式控制台安装 |
| (2) 设备机柜承重加固 | (5) 槽式桥架及上走线架安装 |
| (3) 弧形电视墙安装 |
5. 机房环境集中监控系统工程
| (1) 监控系统平台 | (6) 视频监控系统 |
| (2) 温湿度监测系统 | (7) 电力参数监测系统 |
| (3) 消防报警系统 | (8) 空调监控系统 |
| (4) 漏水检测系统 | (9) UPS监控系统 |
| (5) 门禁监测系统 | (10) 系统综合布线施工 |
6. 呼叫中心场地装修工程
| (1) 电气系统安装工程 | (2) 话务员座席位及安装 |
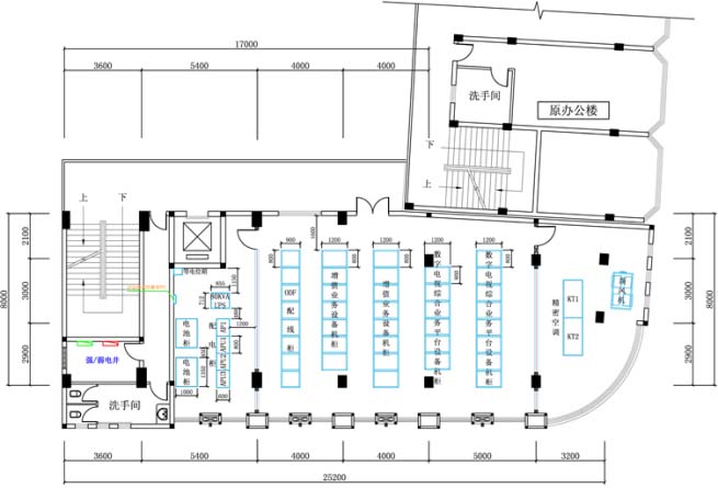
机房规划平面图:

五楼机房平面图

四楼机房平面图
工程案例实景图:
![]() |
|
|
| 抗静电地板安装图一 |
|
抗静电地板安装图二 |
![]() |
![]() |
|
| 下走线电缆布放图 |
|
配电柜安装图 |
![]() |
![]() |
|
| 网络机柜安装图 |
|
精密空调安装图 |
![]() |
![]() |
|
| ODF机柜实景图 |
|
电视墙实景图 |
注册地址:广州市越秀区广州大道中307号C栋3901房 通讯\办公地址:广州市越秀区广州大道中307号富力新天地中心C栋3901房
电话:020-38023820 38023821 38023822 传真:020-38023819
广州卫讯科技有限公司 版权所有 备案号:粤ICP备17090090号-1






















