
清新前端机房系统工程
发布时间:2012-07-02 17:27:16
发布时间:2012-07-02 17:27:16
清新广播电视台数字电视前端机房,根据使用功能将机房划分为数字机房、监控机房、ODF机房、电源机房及呼叫中心等几个机房区域。具体格局和划分面积详见下表:
|
机房名称 |
机房区域 |
机房用途 |
规划面积 |
|
数字电视前端机房 |
数字机房 |
数字电视前端平台、增值业务系统 |
74.90平方米 |
|
监控机房 |
数字电视前端播出监控 |
69.85平方米 |
|
|
ODF机房 |
光纤配线管理 |
18.58平方米 |
|
|
电源机房 |
电气系统管理 |
32.76平方米 |
|
|
呼叫中心 |
客户服务中心 |
18.14平方米 |
|
|
机房总面积: |
214.23平方米 |
||
清新机房建设的主要内容包括:
1. 机房装饰装修工程
| (1) 原机房部分设施拆除及清运 | (5) 机房隔断工程机房门窗工程 |
| (2) 机房天棚工程 | (6) 机房门窗工程 |
| (3) 机房地面工程 | (7) 电源机房配套工程 |
| (4) 机房墙、柱面工程 |
2. 电气系统安装工程
| (1) 机房配电系统 | (4) 机房照明系统 |
| (2) UPS不间断电源系统 | (5) 机房防雷接地系统 |
| (3) 机房备用电源系统 |
3. 空气调节系统
| (1) 数字机房精密空调系统 | (4) 电源机房空调系统 |
| (2) 监控机房空调系统 | (5) 呼叫中心空调系统 |
| (3) ODF机房空调系统 |
4. 机房综合布线系统工程
| (1) 网络服务器机柜及安装 | (4) 电视墙及安装 |
| (2) ODF配线柜及安装 | (5) 组合式控制台及安装 |
| (3) 服务器机柜、ODF柜基座制安装 | (6) 槽式桥架、上走线桥架及安装 |
5. 机房环境综合监控系统工程
| (1) 配电柜电量参数监测 | (5) 漏水监测 |
| (2) 智能UPS监测 | (6) 消防状态监测 |
| (3) 温湿度监测 | (7) 视频监控 |
| (4) 门禁系统 |
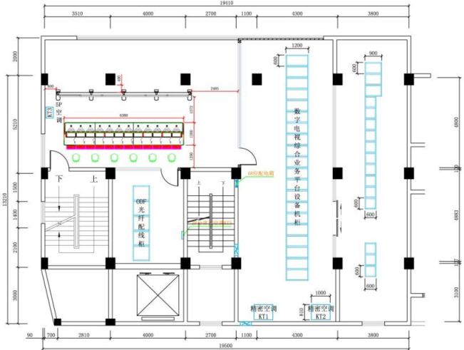
清新机房平面图:

工程实景图:
![]() |
![]() |
|
| 铲灰 |
|
电源机房防水处理 |
![]() |
![]() |
|
| 批荡 |
|
制作隔断墙基座 |
![]() |
![]() |
|
| 制作配电柜基座 |
|
配电柜基座贴抛光砖 |
![]() |
![]() |
|
| 制作 设备机柜基座 |
|
制作踢脚线 |
![]() |
![]() |
|
| 铺设抗静电地板 |
|
喷防尘漆 |
![]() |
![]() |
|
| 安装穿线管 |
|
安装铝扣天花 |
![]() |
![]() |
|
| 安装灯盘 |
|
安装不锈钢门 |
![]() |
![]() |
|
| 玻璃隔断墙 |
|
地网施工 |
![]() |
![]() |
|
| 安装UPS电池开关 |
|
配电柜 |
![]() |
![]() |
![]() |
||
| UPS主机安装调试 |
|
配电柜接线 | 配电柜接线 |
![]() |
![]() |
|
| 安装桥架 |
|
安装设备机柜 |
![]() |
![]() |
|
| 安装精密空调 |
|
安装精密空调 |
![]() |
![]() |
|
| 安装操作台 |
|
安装电视墙 |
注册地址:广州市越秀区广州大道中307号C栋3901房 通讯\办公地址:广州市越秀区广州大道中307号富力新天地中心C栋3901房
电话:020-38023820 38023821 38023822 传真:020-38023819
广州卫讯科技有限公司 版权所有 备案号:粤ICP备17090090号-1










































