计算机机房
您的位置:首页 > 成功案例
乐昌有线数字电视前端机房
发布时间:2012-06-25 18:01:19

 

    乐昌有线数字电视前端机房配套工程是根据目前机房的情况,做局部整改或增加相关设备,以满足有线数字电视综合业务平台搭建、有线数字电视整体转换要求。
 

机房配套工程具体内容包括:
 

1、 数字机房、监控机房、呼叫中心照明灯盘及照明线路整改;
2、 数字机房、监控机房及呼叫中心配电系统(含UPS系统);
3、 网络机柜、电视墙、操作台及呼叫中心座席位办公桌安装;
4、 综合布线桥架安装;
5、 网络机柜、操作台、配电柜等设备接地;

 

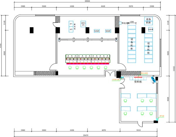
机房平面规划图:

 

 

监控机房效果图:

 

 

 合作伙伴

注册地址:广州市越秀区广州大道中307号C栋3901房 通讯\办公地址:广州市越秀区广州大道中307号富力新天地中心C栋3901房

电话:020-38023820 38023821 38023822 传真:020-38023819

广州卫讯科技有限公司 版权所有 备案号:粤ICP备17090090号-1